
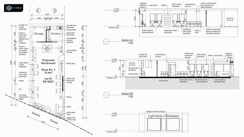
The space has been meticulously designed with a modern architectural fit-out, catering to both barbing and hairdressing needs. Experience a fusion of style and functionality in an enviornment crafted to enhance your grooming experience. Stepping into a contemporary setting where artisty meets comfort, tailored to elevate hair care journey.
Copyright © CSR Homes. All right reserved.